Description
In Mercatino Conca, in a quiet area surrounded by greenery, with an asphalt road to the property and convenient connections to nearby villages, lies this complex of three buildings plus a two-story annex. Everything is surrounded by woods, agricultural land, and a wide panorama that ensures privacy and silence.
RENOVATED FARMHOUSE – 330 SQM
This is the already renovated part, completely renovated in 2013: structure, roof, systems.
The fenced and consolidated garden with reinforced earth measures approximately 1,500/2,000 sqm, with open and natural spaces.
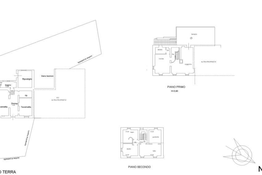
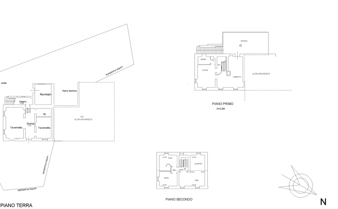
Ground Floor – Independent Apartment
Here you will find a practical and welcoming environment.
There is an entrance, a double bedroom, a kitchen with an open-plan dining room, a bathroom with a shower, and a storage room.
Heating is provided by a ventilated thermo-fireplace and radiators.
The windows are made of wood with double glazing and there are iron grates. Mosquito nets are also present everywhere.
First Floor – Access from panoramic terrace
A terrace overlooking the hills introduces this level.
Inside there is a living room with a thermo-fireplace, a dining room, the kitchen, and a bathroom.
The atmosphere is bright and the view enters from every window.
Second Floor
The sleeping area is developed here: a double bedroom with a walk-in closet, a single bedroom/study, and a bathroom with a shower and sauna.
Features of the renovated part
•Zoned heating
•Mosquito nets throughout the house
•12 cm window frames
•Wooden floor
•Underfloor heating (thermo-fireplace or LPG)
•Energy class D
•Solar thermal panel for hot water
•Municipal water
•Spring/well to be restored
•1,000 liter tank with water softener
•Details such as internal slate stairs
•Garage and storage rooms on the ground floor
PORTION OF FARMHOUSE TO BE RENOVATED – 189 SQM
This part still retains its original imprint.
The relevant land is approximately 8,000 sqm, between woodland and uncultivated arable land.
Ground Floor
A kitchen with a fireplace, a large storage room, a kitchenette under the stairs, and a living room.
The spaces are simple and authentic, with the rural structure still clearly visible.
First Floor
Three double bedrooms, a single bedroom, and a toilet.
The rooms have generous spaces and natural light that comes from the different views.
Outbuilding (chicken coop)
Next to this portion there is a two-story annex, used today as a chicken coop.
It can become a small accommodation, atelier or technical room.
THIRD BUILDING – INDEPENDENT, IN STONE APPROXIMATELY 300SQM
The third building is separate from the others and entirely in exposed stone.
It is large, arranged on two levels and completely to be renovated.
The thick walls, the volume and the position make it ideal as a future guest house or second home.
ADDITIONAL LAND
There is also the possibility of purchasing 20 hectares of mixed land (woodland and arable land), currently leased, not adjacent to the property but very close.
The entire property offers a lot of privacy but remains convenient thanks to the easy connections.
The spaces are large and versatile: perfect for those who want to live in nature, host friends and family, or create an accommodation facility immersed in the landscape.
















































